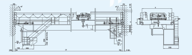
QD型吊鉤橋式起重機廣泛適用于加工車間、貨場、碼頭等,進行物料的運輸。QD型吊鉤橋式起重機,主要有橋架、大車運行機構、小車和電器設備等組成,其工作級別為A5-A6,環境工作溫度為-20℃-40℃。本產品為地面操縱和司機操縱。

工作級別 | A5 | A6 | ||||||||||||||||
起重量 | t | 5 | ||||||||||||||||
跨度 | m | 10.5 | 13.5 | 16.5 | 19.5 | 22.5 | 25.5 | 28.5 | 31.5 | 10.5 | 13.5 | 16.5 | 19.5 | 22.5 | 25.5 | 28.5 | 31.5 | |
起升高度 | m | 6、8、10、12、14、16 | ||||||||||||||||
速度 | 起升 | m/min | 12 | 15 | ||||||||||||||
小車運行 | 39.5 | 39.5 | ||||||||||||||||
大車運行 | 69 | 93 | ||||||||||||||||
電動機 | 起升 | 型號/功率 | YZR160L-6/11kw | YZR180L-6/15kw | ||||||||||||||
小車運行 | YZR112M-6/1.5kw | YZR112M-6/1.5kw | ||||||||||||||||
大車運行 | YZR132M2-6/2×3.7kw | YZR160M1-6/2×5.5kw | ||||||||||||||||
主要尺寸(mm) | B | 5100 | 5700 | 5100 | 5700 | |||||||||||||
K | 3500 | 4100 | 3500 | 4100 | ||||||||||||||
H | 1732 | 1735 | 1738 | 1741 | 1746 | 1749 | 1752 | 1755 | 1732 | 1735 | 1738 | 1741 | 1746 | 1749 | 1752 | 1755 | ||
A | 725 | |||||||||||||||||
h1 | 96 | 94 | 96 | 94 | ||||||||||||||
F | 26 | 176 | 246 | 326 | 476 | 676 | 776 | 926 | 26 | 176 | 246 | 326 | 476 | 676 | 776 | 926 | ||
輪壓 | kN | 71 | 75 | 80 | 88 | 92 | 101 | 106 | 110 | 73 | 77 | 83 | 90 | 98 | 105 | 110 | 119 | |
薦用大車鋼軌 | 38、43、50kg/m | |||||||||||||||||
電源 | 三相交流380V 50HZ | |||||||||||||||||